Château-d'Oex / Clair-Joli

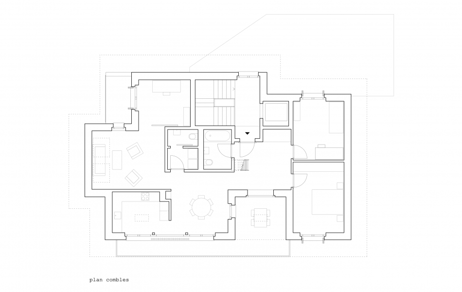
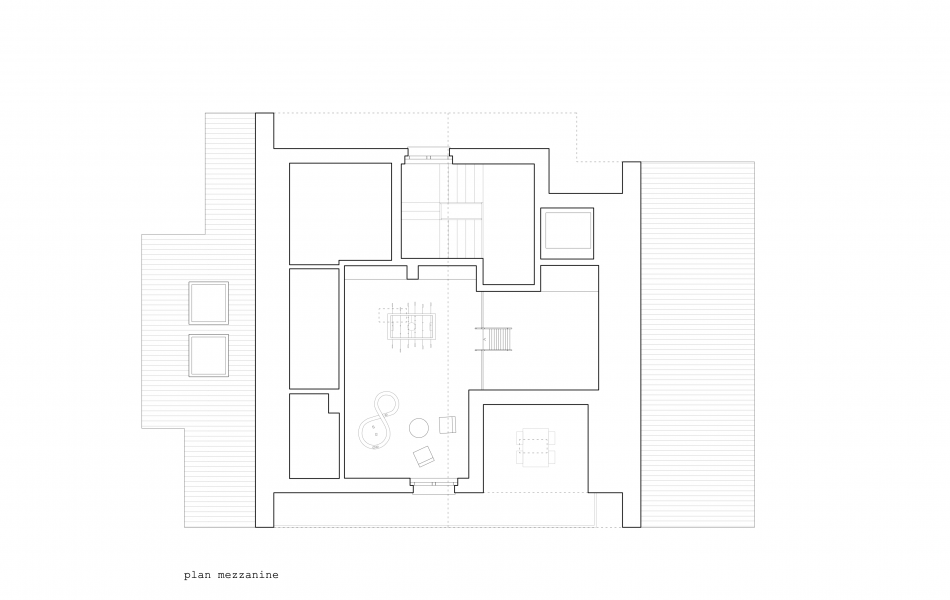
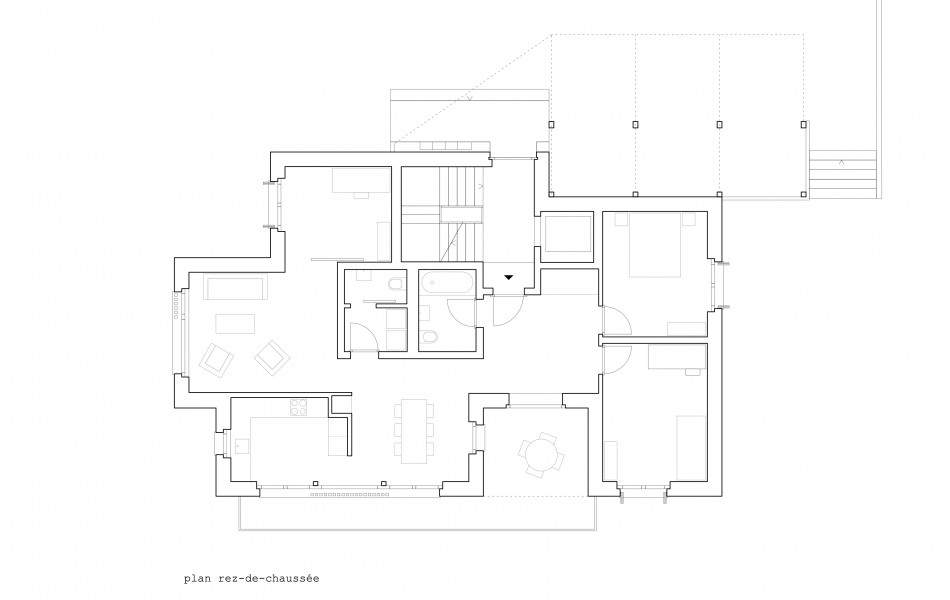
La nouvelle construction remplace le petit chalet familial, devenu trop exigu pour ses propriétaires. Située au centre du village, la bâtisse s’implante sur la parcelle de manière précise grâce au découpage effectué sur sa forme afin d’optimiser et de réduire son impact volumétrique dans le site bâti. Réalisée en brique monolithique isolée, elle dialogue avec les constructions voisines majoritairement minérales. Le bâtiment accueille 4 logements, à raison d’un appartement par étage. Chaque appartement profite d’une orientation à 360 °, profitant ainsi de vues diversifiées sur les paysages magnifiques du Pays-d’Enhaut.

 

Photographies: Vincent Jendly